Utbyggingsplaner for velhuset

Styret i Rodeløkka vel har helt siden 2007 arbeidet for å få lagd et tilbygg til velhuset, slik at det blir universelt utformet og får økt kapasiteten fra 30 til 50 gjester. Det har vært et langt løp som startet på et møte i velhuset i desember 2007, der en representant for Eiendoms- og byfornyelsesetaten (EBY) og en representant fra bydel Grünerløkka møtte velets leder for en befaring og drøfting. Vi ble da enige om følgende:

  • At EBY som velhusets juridiske eier overlater til velet å utarbeide planer om et tilbygg, samt søke om rammetilletelse for dette.
  • At EBY er med på å diskutere en finansiering av tilbygget når en rammetillatelse foreligger. Velet henviste her til den omfattende rehabiliteringen av velhuset til dagens standard som skjedde midt på 1980-tallet, og som velet fikk gjennomført med støtte fra Husbanken.

Etter flere runder med Byantikvaren kom vi til enighet med dem om hvordan et tilbygg måtte se ut utvendig for å bli godtatt. Det kunne ikke ha noen moderne utforming, slik velets arkitekter ønsket, men måtte bygges slik at velhuset ble forlenget i hele sin høyde og bredde, samt at den opprinnelige fasaden (uten balkong) ble gjenopprettet. I erkjennelsen av at politikk er det muliges kunst, gikk velet med på dette. Det viktigste var tross alt å få realisert et tilbygg som rommer en etasjeheis for bevegelseshemmede, samt en ny trapp, slik at arealet i andre etasje kan utnyttes bedre.

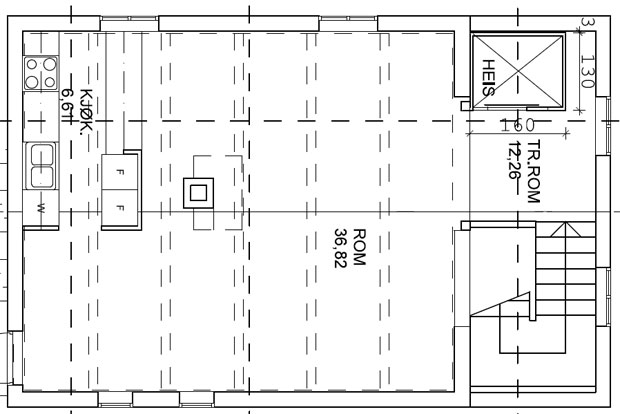
Planen for et velhus med tilbygg ble da denne: Eksisterende trapp rives og erastattes av ei ny trapp med repos i tilbygget (til høyre), som også rommer en heis for bevegelseshemmede. I første etasje (tegningen under) lages et handikap-toalett i tillegg til et ordinært toalett.

Andre etasje (tegningen under) får et mer komprimert og rasjonelt utformet kjøkken, som plasseres der trappa i dag kommer opp. Dermed frigjøres betydelig mer av arealet til gjester. Pipeløpet blir frittstående midt i rommet, og det lages en ny og mindre plasskrevende peis.

(Tegninger: Rolf Terjesen og Erik Haarstad)

Utvendig blir et velhus med tilbygg seende slik ut:

Her er velhuset forlenget cirka 2 meter i sin fulle lengde mot fellesarealet, og husets opprinnelige fasade mot vest er gjenopprettet (se bilde fra 1978 under). Siden velhuset ligger i et skrånende terreng, er en ny hovedinngang tenkt på hjørnet ved fellesarealet, slik at man derfra går en halv trapp opp for å komme til første etasje. Dagens inngangsdør beholdes og er den rullestolbrukere benytter for å komme inn i første etasje, og derfra inn i heisen. (Det er ikke prosjektert trapper i gangveien, slik tegningen kan gi inntrykk av.) (Tegning: Rolf Terjesen og Erik Haarstad)

Til venstre: Velhusets fasade mot vest anno 1978, med høy steinmur og uten balkong (foto: Byantikvaren). Til høyre: Samme fasade etter rehabiliteringen midt på 1980-tallet, da eksisterende balkong ble anlagt.



Utomhusplan for fellesarealet, der tilbygget er tegnet inn. (Ill.: Rolf Terjesen, basert på eksisterende plan av Remark!Landskap)

RAMMETILLATELSE GITT I 2010

Plan- og bygningsetaten (PBE) ga i desember 2010 velet rammetillatelse til å oppføre et tilbygg til velhuset, i henhold til de skisserte planene. PBE ga også dispensasjon for å bygge på fellesarealtomta, slik velet søkte om. Dette har også bydel Grünerløkka akseptert. Dermed var første hovedetappe i dette omfattende prosjektet fullført, som vil gjøre velhuset tidsmessig også for de neste tretti år.

I sin vurdering av saken gir PBE full støtte til velets argumentasjon for å oppføre et tilbygg. Som oss mente etaten at tilbygget kun reduserer utearealet med ca. 6 kvm, siden arealet under eksisterende balkong er lite egnet for lek. PBE skrev videre at: «Velhuset og fellesareal/lekeplassen er gjensidig avhengig av hverandre, dvs. at en styrking av velhuset er positiv også for fellesarealet. (...) Basert på utomhusplanen fremgår det ikke at tilbygget reduserer bruksmulighetene her i særlig grad. Tilbygget gir en god økning av velhusets bruksareal, og hovedatkomsten i bygningen bedres betydelig med blant annet universell atkomst.»

Når det gjelder utsiktene til økt trafikk og parkeringsbehov, som førte tll at noen av naboene nederst i stikkveien fra Langgata innleverte naboprotest, mente PBE at en økt bruk av velhuset trolig vil medføre noe økt trafikk. Men de «finner ikke at dette kan være urimelig». Etaten påpekte dessuten at velhuset har gode atkomstmuligheter, også fra Tromsøgata. Dette er i samsvar med velstyrets argumentasjon.

FLERE REGLER, MINDRE HANDLINGSROM

Da rammetillatelsen forelå, tok velet på nytt kontakt med EBY, i tråd med avtalen fra 2007. Vi fikk da vite at saksbehandleren vi hadde inngått avtalen med, var gått av med pensjon, og møtte et nytt regime som stilte seg langt mindre velvillig til utbyggingsplanene. De følte seg ikke bundet av noen inngått muntlig avtale, og viste dessuten til en rekke nye regler som var innført i kommunen, som ikke lenger tillot dem å la velet forestå en utbygging, slik velet hadde gjort ved rehabiliteringen midt på 1980-tallet.

Siden velhuset (og fellesarealet) sorterer inn under EBYs forvaltningsavdeling, var det nå også blitt umulig for EBY å la kommunen foreta en utbygging. Kommunen har aldri påtatt seg et fullstendig eierskap for eiendommen, men har kun forvaltet den inntil videre, i påvente av å finne en permanent løsning som fram til da var helt i det blå. Denne forvaltningen inntil videre har nå vart i førti år. Reglene for slike forvaltede eiendommer er i de siste årene blitt innstrammet, slik at kommunen ikke lenger har lov til å påkoste disse eiendommene noe som helst, heller ikke utlegg til vedlikehold.

"KJØP VELHUSET!"

Saksbehandlerne i EBY så imidlertid poenget med en utbygging, og da vi ikke ga oss uten videre, men lot dem skjønne at vi mente alvor, gikk de i dialog med oss for selv å finne en løsning på saken. Denne løsningen, kom de til, var at velet ba etaten om å kjøpe eiendommen. Det var eneste mulighet for å få realisert et tilbygg. Vi sendte dem en slik anmodning, og de innhentet en takst på 1,5 til 2 millioner ut fra dagens reguleringsbestemmelser, der eiendommen verken kan brukes til bolig eller næring, men er et fellesareal for lek og rekreasjon.

Som også EBYs saksbehandlere innså, var en slik takst uaktuelt høy. Like uaktuelt var det, ut fra det stadig strengere regelverket, å selge eiendommen til oss for kroner 1, slik det har vært noen eksempler på i nyere tid. Da kom saksbehandlerne på ideen om å kun selge huset til oss, og la oss bygsle utearealet. En slik løsning sa vi oss interessert i, og ny takst ble innhentet. Den var på kr 549 000, og ble den summen EBY tilbød velet å kjøpe velhuset for. Dette var innenfor rammene av hva velet kunne klare. Styret innkalte velets medlemmer til et ekstraordinært årsmøte 14. januar 2016, der vi anbefalte medlemmene å takke ja til EBYs tilbud. Forslaget ble vedtatt enstemmig.

OG SÅ VAR DET FORMALITETENE ...

Velet har altså takket ja til EBYs tilbud godt innenfor fristen på seks måneder før taksten utløp. Men før kjøpet kunne gå i orden, måtte EBY ordne noen formaliteter, deriblant miljømerking. Samtidig satte etaten nye medarbeidere på saken. Dermed gikk hele vårsemesteret 2016 uten at EBY fikk fremlagt noen kjøpskontrakt til undertegning. I skrivende øyeblikk (juli 2016) er saken oversendt kommuneadvokaten for endelig godkjenning.

Først når kjøpet er gått i orden kan velet arbeide videre med utbyggingsplanene. Ny rammesøknad må innsendes, siden den vi fikk i 2010 er utløpt. Også en finansieringsplan må stables på beina, der velet skaffer til veie midler fra ulike gode krefter og sponsorer. Et tilbygg med heis vil neppe koste mindre enn 2 millioner kroner, selv med en del dugnadsinnsats, og det er utenkelig at velet skal kunne bekoste dette alene. Vi må derfor satse på at flere enn oss finner prosjektet støtteverdig som et miljøskapende tiltak i Indre Oslo Øst. Ikke minst de barnevennlige omgivelser, med en skjermet lekeplass i tilknytning til velhuset, gir oss gode argumenter for det.

Først når vi har fått ny rammetillatelse samt lagd en realistisk finansieringsplan kan en endelig avgjørelse om utbygging tas. Det må skje på et ekstraordinært årsmøte.

Tekst: Morten Fastvold


Eldre artikler om Utbyggingsplaner for velhuset

«Velet har sitt virkeområde på det sentrale Rodeløkka, som avgrenses av Helgesensgate i sør, Dælenenggata i nord, Trondheimsveien i øst og Gøteborggata i vest.» Bli medlem! Lei velhuset!

Rodeløkka Vel
Tromsøgata 22 C
0565 Oslo

Stiftet: 08.12.1953
Org. nr: 892 041 822

Rodeløkka Vel på Facebook

Diverse linker

Hjem » Aktuelt » Utbyggingsplaner for velhuset